we care project

We Care Connect — Community Refurbishment

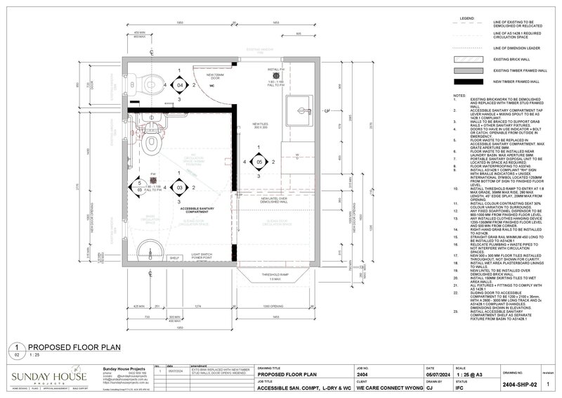
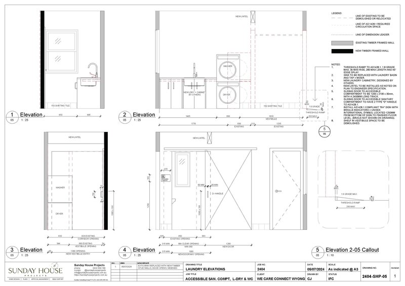
A non-profit renovation creating an accessible bathroom and laundry upgrade for the We Care Connect volunteer hub for the volunteers who provide essential goods, clothing, and toys to vulnerable children and families across the Central Coast.

A community-driven renovation completed for We Care Connect, a Central Coast not-for-profit supporting vulnerable children and families.
Following a community call-out on social media, local trades and businesses came together to transform the organisation’s volunteer facilities — creating a new accessible bathroom, toilet and laundry refurbishment. 

Proudly supported by Sunday House Projects, our friends at  Impact Electrical,  Eagles Plumbing Plus - Gosford and an incredible team of local contributors, this project reflects what’s possible when community and craftsmanship come together for good.

A heartfelt collaboration to enhance dignity, accessibility, and support for volunteers at We Care Connect, this community refurbishment delivers a thoughtfully designed accessible bathroom and laundry upgrade to a not-for-profit organisation on the NSW Central Coast.

We Care Connect’s mission is to support disadvantaged children and families by distributing essential goods, clothes, toys, and care through a network of compassionate volunteers. 
We Care Connect

 When they issued a call to the community for assistance, the response was overwhelming — local residents, businesses, and trades rallied. Among the contributors were Impact Electrical and Sunday House Projects, offering in-kind labour, materials, and expertise to bring this vision to life.

Every element of this renovation was approached with purpose: accessibility, durability, and respect. The upgraded spaces now better enable volunteers to continue their essential services in comfort and function. As We Care Connect emphasises, every donated item is given free to families in need, and 100% of monetary gifts are used to support those families directly. 

This project stands as an example of what’s possible when design, community care, and social responsibility intersect — transforming space to empower people who give so much to others.

project: Community Refurbishment

description:

We Care Connect - central coast - WYONG HUB

type: Community Refurbishment

#WeCareConnectProject #CommunityRenovation #DesignForGood #CentralCoastCommunity #WeCareConnect #ImpactElectrical #dignity #SundayHouseProjects #GivingBack #VolunteerHubRefurbishment #CommunityProject #CentralCoast #SocialImpactDesign #AccessibleDesign

We Care Connect - central coast - WYONG HUB